Hotel Industrial

Architektonická studie

 

Studie: 2012

Zastavěná plocha: 1850 m2

Podlahová plocha: 7550 m2

Místo: Slezská Ostrava

 

Architektonické řešení

 

 

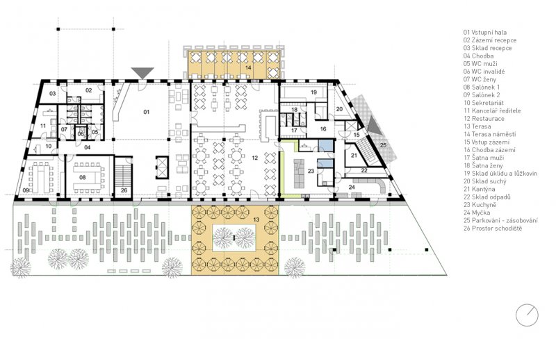
Tvar objektu vychází z obdélníku, na který navazují dvě konzoly, tvar je poté deformován tak, aby vyhověl okolní zástavbě, komunikacím a při tom si zachoval vhodné parametry pro danou funkci objektu.

Horizontální členění objektu reaguje na konfiguraci terénu, kdy objekt je jakousi hradbou mezi náměstím v jedné výškové úrovni a prostorem za hotelem, který je o dvě výškové úrovně níže. Z toho důvodu je objekt zapuštěný do svahu. Spodní dvě patra mají funkci parkování, na ně navazuje parter, jehož konstrukční výška je vyšší než u ostatních podlaží a to proto, aby bylo docíleno posílení jeho funkce a zároveň i odlehčení nadzemní části objektu. Na parter navazují dvě nadzemní podlaží se standardní konstrukční výškou.

Spolupráce: Ing. arch. Aleš Vojtasík