RD Ostravice

RD Ostravice

Architektonická studie novostavby rodinného domu 

Studie: 2026

Zastavěná plocha: 305,8 m2

Podlahová plocha: 268,71 m2

Obec: Ostravice

Spolupráce: Ing. Arch. Lukáš Tyrlík 

Architektonické řešení:

Jedná se o dvoupodlažní rodinným dům s obytným podkrovím o zastavěné ploše 305,8 m2. Základní objemové řešení navrhovaného domu vychází z kompozice ve tvaru písmene T. Navržená hmota částečně respektuje půdorysnou stopu původní stavby a v určité míře na ni navazuje - konkrétně přebírá západní hranu stávajícího objektu, který je určen k demolici. Tvarové řešení střech kombinuje sedlové střechy hlavní části s plochou střechou doplňujícího objemu. Toto řešení dodává stavbě nadčasový architektonický výraz a zároveň citlivě reaguje na charakter venkovského prostředí, do kterého je dům zasazen. Sedlová střecha odkazuje na tradiční formu okolní zástavby, zatímco plochá střecha doprovodné hmoty podtrhuje moderní
charakter celého objektu.

Objekt je funkčně rozdělen do dvou základních částí - na část příjezdovou s krytým stáním pro automobily a saunou a část obytnou. Kryté stání vytváří závětří pro hlavní vstup do domu. Na tuto část navazuje objekt sauny s relaxační zónou. Všechny části jsou vzájemně propojeny tak, aby mezi nimi byl zajištěn pohodlný a plynulý pohyb, přičemž díky krytému stání je možné mezi jednotlivými částmi domu procházet „suchou nohou“.

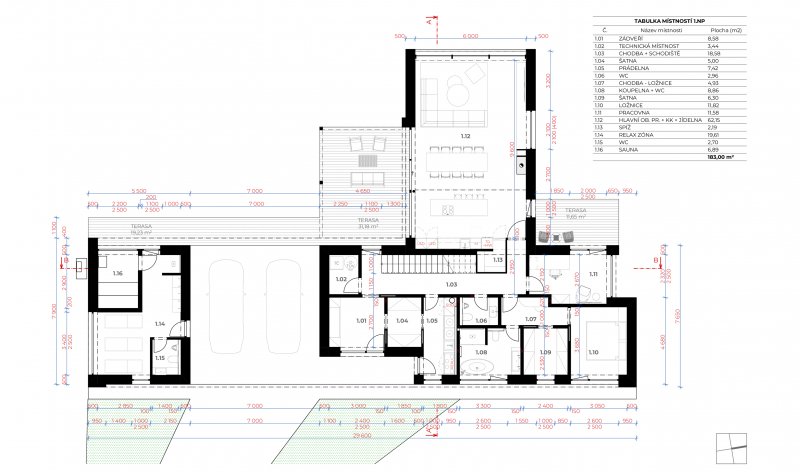
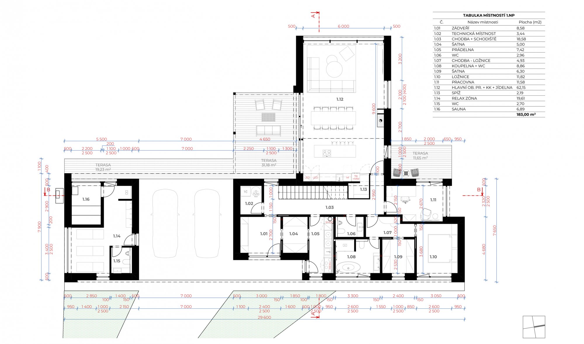
Dispoziční a funkční řešení hlavního objektu je organizováno ve dvou nadzemních podlažích. V 1.NP je technická část domu, která zahrnuje technickou místnost, prádelnu, šatnu a samostatné WC. V této úrovni se dále nachází ložnice a pracovna, které tvoří klidovou část domu orientovanou s ohledem na soukromí a kontakt se zahradou. Na tyto místnosti navazuje hlavní obytný prostor domu, který sdružuje funkci kuchyně, jídelny a obývacího pokoje. Tento prostor je koncipován jako otevřený a vzdušný, s galerií v úrovni druhého nadzemního podlaží. Obytný prostor je otevřen až do úrovně krovu, čímž vzniká velkorysý interiér s výraznou prostorovou kvalitou. Díky velkorysému prosklení a orientaci vůči terénu nabízí tento prostor atraktivní
výhledy do okolní krajiny a zároveň zajišťuje dostatek přirozeného denního osvětlení.
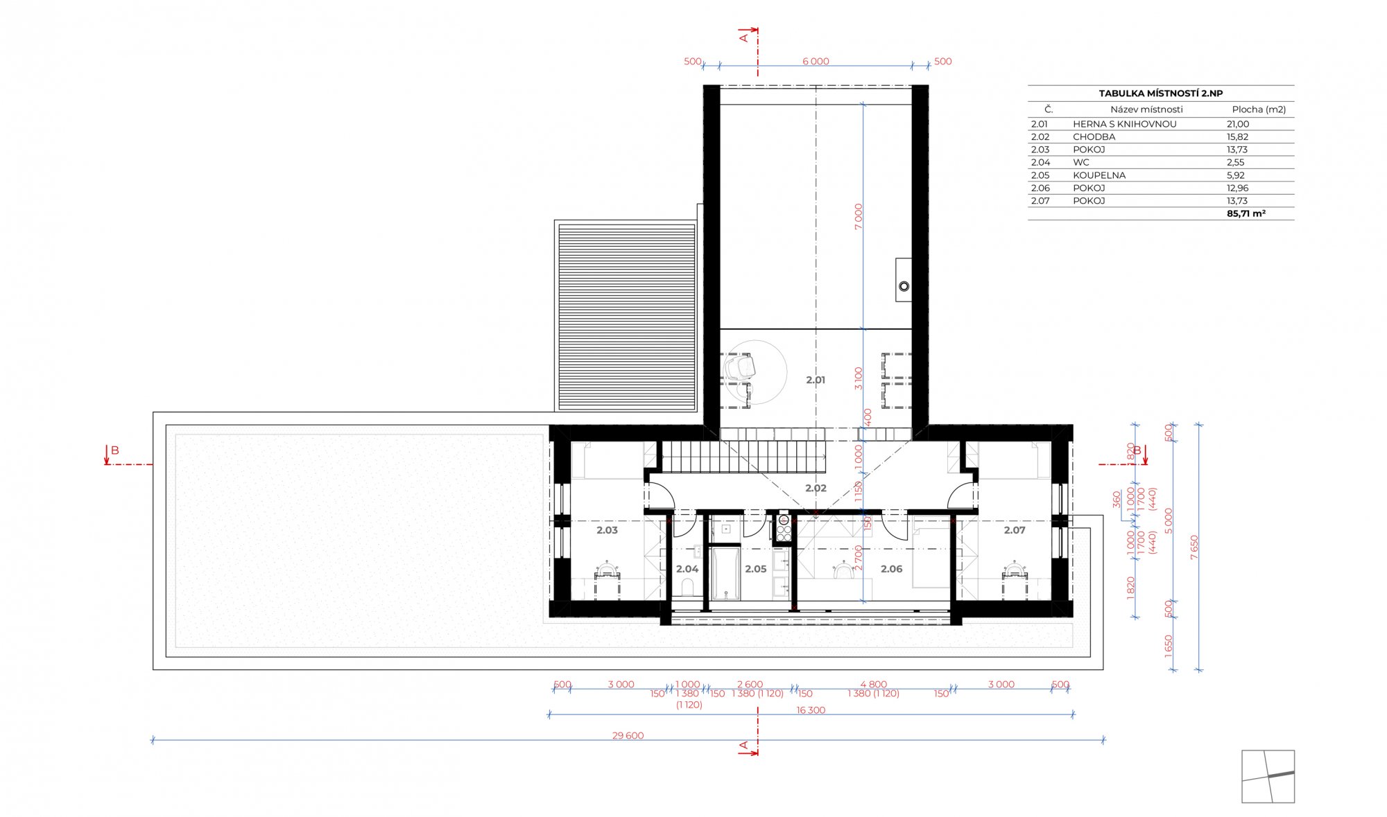
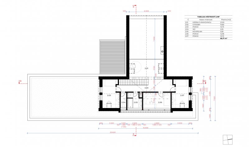
Ve 2.NP jsou umístěny dětské pokoje, které tvoří samostatnou klidovou zónu domu. Tyto pokoje jsou doplněny vlastní koupelnou a samostatným WC, čímž je zajištěn komfortní a funkčně nezávislý provoz této části domu. Součástí návrhu je také řešení venkovních pobytových ploch. Hlavní terasa je přirozeně napojena na jídelní část a kuchyň a vytváří tak přímé rozšíření obytného prostoru do exteriéru. Druhá terasa je situována u pracovny a je rovněž provozně propojena s kuchyní, což umožňuje její flexibilní využití během dne. Další relaxační venkovní plocha je navržena před objektem sauny, kde vzniká klidné místo určené pro
odpočinek a regeneraci.
Dům je z velké části zahalen do falcovaného plechu s antracitovým odstínem - z plechu je nejen střešní krytina, ale jsou jím obloženy i stěny hlavní hmoty vystupující z terénu směrem k strmému svahu a lesu.Hmota podélného kvádru je v bílé omítce doplněna o obklad z dřevěných prken. Vikýř v 2.NP je pak zahalen do šedé omítky. Celkově se tak architektonický koncept domu pohybuje na pomezí tradičního vzhledu a moderního designu, což odráží snahu o respekt k přírodnímu okolí a současně nabízí vysoký standard bydlení.