Interiér bytu, Véska

Architektonická studie interiéru, Véska

 

Studie: 2024

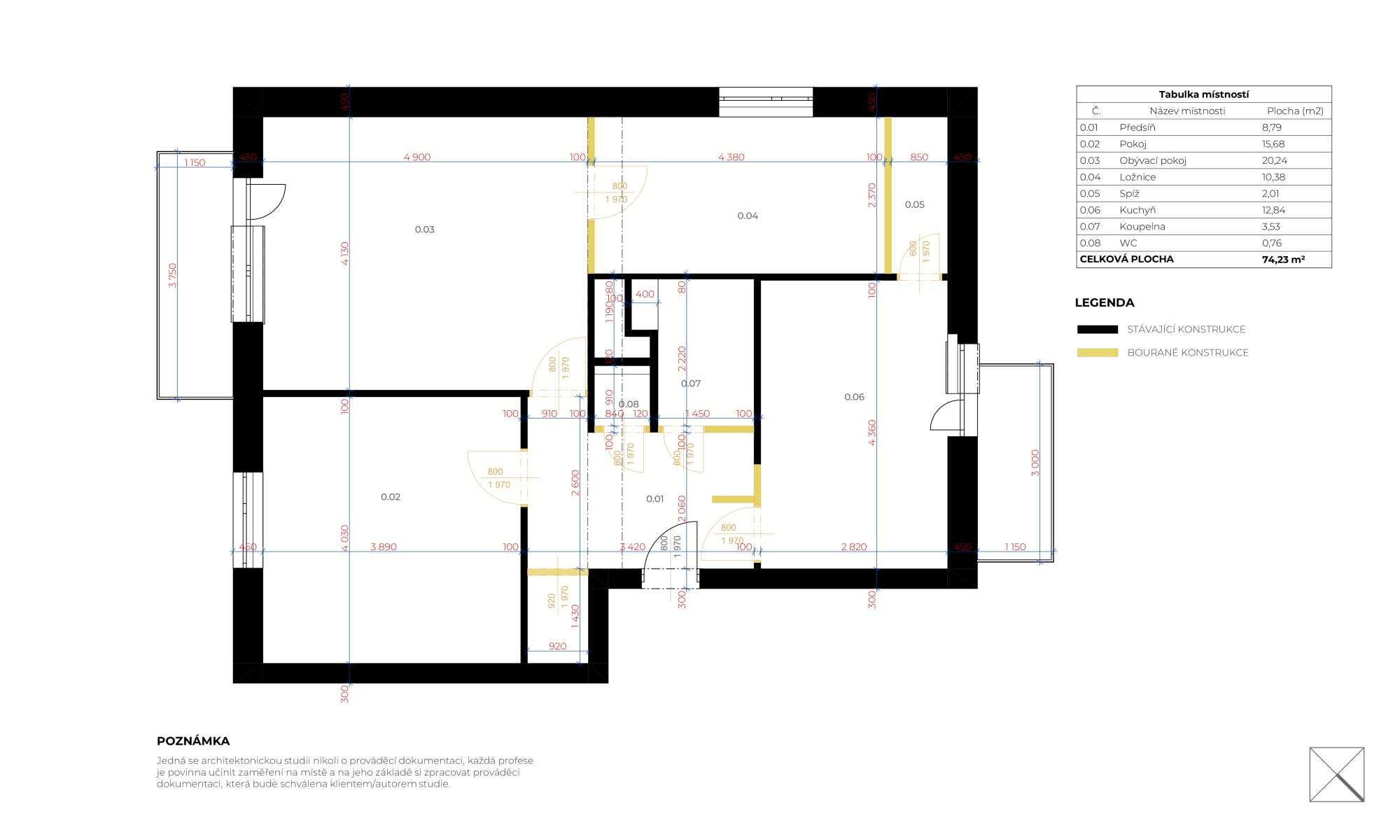
Zastavěná plocha:86,7 m2

Podlahová plocha: 74,2 m2

Místo: Véska

Spolupráce: Bc. Sabina Císařová, Visuliera s.r.o. 

 

Architektonické řešení

 

Jedná se o návrh menšího bytu v obci Véska. Návrh je řešen s důrazem na využitelnost a praktičnost celkového řešení. Byt je koncipován v minimalistickém designu s použitím ateriélů na přírorní bázi - dřevo, travertin, které jsou doplněny o antracitové akcenty. Celkové pojetí vychází z požadavku na vzdušnost a plynulé propojení jednotlivých místností v jeden harmonický celek.