Přestavba RD Olomouc
Architektonická studie přestavby rodinného domu
Studie: 2022
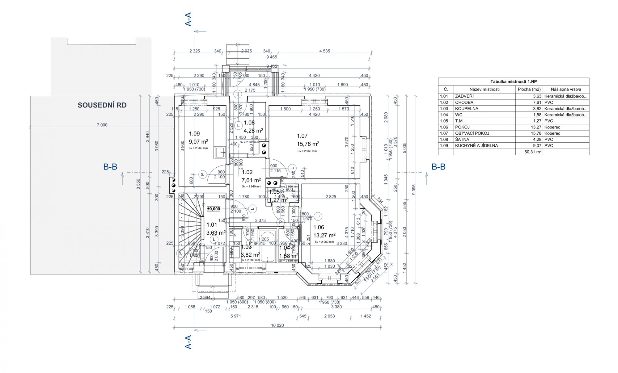
Zastavěná plocha: 152,9 m2
Podlahová plocha: 295,6 m2
Místo: Olomouc - Lazce
Architektonické řešení
Jedná se o podsklepenou dvoupodlažní budovu RD s podkrovím o zastavěné ploše 152,95 m2. Hmotu objektu tvoří nepravidelný tvar. Fasáda šedivé a pískové barvy, na níž kontrastně reagují antracitové rámy oken, které jsou rytmicky akcentované zvýrazněnými rámy, které vystupují nad fasádu. Střecha je včetně oplechování a vikýřů vytvořena antracitovou barvou. RD se skládá ze zastřešeného parkovacího stání, které o patro výše zároveň tvoří funkci terasy. U rodinného domu bude provedena celková rekonstrukce, přístavba krytého parkovacího stání a nové obytné části. Bude upraven tvar střechy. Parkování je řešeno zastřešeným parkovacím stáním pro dvě vozidla se zpevněnou plochou v úrovni příjezdové komunikace.
 
					 
					 
					 
					 
					 
					 
					 
					 
					 
					 
					 
					 
					 
					 
					 
					 
					 
					 
					 
					 
					 
					 
					 
					 
					 
					 
					 
					 
					 
			 
			 
			 
			 
			 
			 
			 
			 
			 
			 
			 
			 
			 
			 
			 
			 
			 
			 
			 
			 
			 
			 
			 
			 
			 
			 
			 
			